170719 | PA17/06782 | Erection of a new dwelling and detached garage. - Land NW Of 5 Grist Lane Angarrack Cornwall
Erection of a new dwelling. Previously planning application numbers PA13/00608 and PA16/06298 were passed for this site. New application is for exactly the same site size, location etc, but the dwelling appearance, layout etc have been amended
Foul sewerage -
Three new connection chambers to be placed within the site which will then connect into the mains system in the adjoining road. See 1991.C.200 sheet 3 of 3 for further information.
Applicant: Mr & Mrs R and A Johns
Erection of a new dwelling and detached garage. - Land NW Of 5 Grist Lane Angarrack Cornwall
Ref. No: PA17/06782 | Received date: Wed 19 Jul 2017 | Status: Pending Consideration | Case Type: Planning Application
You can select up to 25 documents to download in one archive file at a time.
| Date Published | Document Type | Measure | Description | View | |
|---|---|---|---|---|---|
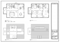
| 14 Aug 2017 | Plan - Mixed | |
LOCATION PLAN, PROPOSED FLOOR PLANS AND ELEVATIONS AND TYPICAL DETAILS | |
|
| 19 Jul 2017 | Photographs | |
Photograph 3 | |
|
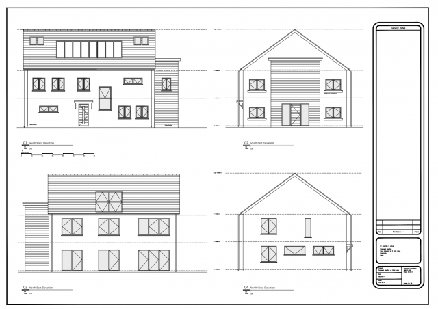
| 19 Jul 2017 | Plan - Proposed Elevations | |
1991.C.150 Proposed Elevations | |
|
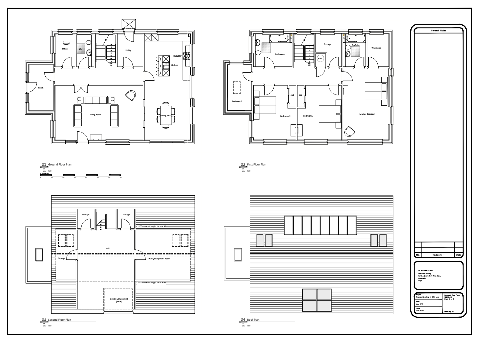
| 19 Jul 2017 | Plan - Proposed Floor | |
1991.C.100 Proposed Floor Plans | |
|
| 19 Jul 2017 | Photographs | |
Photograph 4 | |
|
| 19 Jul 2017 | Photographs | |
Photograph 5 | |
|
| 19 Jul 2017 | Application Documents | |
Proposed Dwelling Letter | |
|
| 19 Jul 2017 | Application Form | |
Application Form | |
|
| 19 Jul 2017 | Photographs | |
Photograph 2 | |
|
| 19 Jul 2017 | Photographs | |
Photograph 1 | |
To whom it may concern, We are writing this letter to outline our circumstances to hopefully help you determine our application. We are a local family with young children whom all attend the local schools and we also run a business within the Marsh Lane Industrial Estate within the town of Hayle. We hope to build our home as per our application, and subsequently then integrate ourselves into the community of Angarrack. It is worth noting that the building plot has been on the market for several years prior to us purchasing it, and we genuinely wish to build our family home here. It is our intention that during the construction of the dwelling we will do all we can keep all noise and disruption to a minimum. We will also be liasing regularly with our neighbours during the construction phase to ensure they are informed in advance of any potential disruption to them. We have already spoken to the majority of our immediate neighbours and are very happy to discuss things in person should anyone have any concerns. The village of Angarrack has a very diverse range of homes and we feel that our proposed dwelling design is very simple and therefore not out of character with the diversity of the village (especially considering the approved applications of recent years and particularly PA17/00288). We hope that you feel this proposed application is suitable for the site and we can obtain permission to build our home and move to the village.
Kind Regards Mr R and Mrs A Johns 23 Trelissick Road Hayle Cornwall TR27 4HY
PA17/00288 - PA17/00288 | Application for removal of condition 2 in respect of Decision Notice PA15/01953 - 12 Back Lane Angarrack PA15/01953 modification to PA15/01953 - PA15/01953 | Construction of a pair of semi-detached dwellings - 12 Back Lane Angarrack Hayle Cornwall TR27 5JE
- Printer-friendly version
- Login or register to post comments
- Permalink
Contributions
- Angarrack Defibrillator Team (25)
- Angarrack Inn (336)
- Angarrack Methodist Chapel (3)
- Carol (15)
- Gail (1)
- GordonG (12)
- Hayle Development Group on Facebook (5)
- Hayle Harbour Authority (4)
- Hayle Town Council (5)
- louise (1)
- Lynne (111)
- Mal (1)
- MattBuckley66 (9)
- Neil (22)
- Neils Garden Care (9)
- Russell (21)
- Secretary - Christmas Lights (141)
- Steve (3)
- webmaster (5122)
Book page
tags in
Similar
- PA16/06298 | Proposed single dwelling in accordance with previous approvals PA13/00608 and W1/09-1364 - Land Adj To 5 Grist Lane
- Refused: PA13/06605 | Erection of 2 industrial units | Grist Lane Hayle TR27 5HZ | Planning Application
- PA13/01136/PREAPP Grist Lane June 2013 | Planning Proposal
- 080720 | W1/08-1024 | Construction of replacement dwelling Head No(s): 61815 | 10 Riverside Angarrack
- PA17/04948 | Submission of details to discharge condition 6 in respect of Decision Notice PA17/00288 dated 9th March 2017 - 12 B
Similar across site
- PA16/06298 | Proposed single dwelling in accordance with previous approvals PA13/00608 and W1/09-1364 - Land Adj To 5 Grist Lane
- Refused: PA13/06605 | Erection of 2 industrial units | Grist Lane Hayle TR27 5HZ | Planning Application
- PA13/01136/PREAPP Grist Lane June 2013 | Planning Proposal
- 080720 | W1/08-1024 | Construction of replacement dwelling Head No(s): 61815 | 10 Riverside Angarrack
- PA17/04948 | Submission of details to discharge condition 6 in respect of Decision Notice PA17/00288 dated 9th March 2017 - 12 B














Recent comments
12 weeks 10 hours ago
17 weeks 11 hours ago
17 weeks 11 hours ago
32 weeks 10 hours ago
51 weeks 4 days ago
51 weeks 4 days ago
51 weeks 4 days ago
51 weeks 4 days ago
1 year 21 weeks ago
1 year 35 weeks ago