Articles
1709 | Marsh Lane realignment
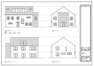
170719 | PA17/06782 | Erection of a new dwelling and detached garage. - Land NW Of 5 Grist Lane Angarrack Cornwall
Erection of a new dwelling. Previously planning application numbers PA13/00608 and PA16/06298 were passed for this site. New application is for exactly the same site size, location etc, but the dwelling appearance, layout etc have been amended
Foul sewerage -
Three new connection chambers to be placed within the site which will then connect into the mains system in the adjoining road. See 1991.C.200 sheet 3 of 3 for further information.
Applicant: Mr & Mrs R and A Johns read more »
170807 | St Erth roundabout A30 section to be restricted to 30mph limit for eight months | Cornwall Live
St Erth roundabout A30 section to be restricted to 30mph limit for eight months
| Posted: August 07, 2017 read more »
170622 | Grigg’s Quay, Lelant – LATEST | Hayle development discussion group FB
Grigg’s Quay, Lelant – LATEST
I’ve just spoken to a nice man at Cornwall Council to find out what’s going on with the one-way system. But first, here’s a reminder of the situation from my perspective since last Summer: read more »
170725 | PA17/05181 | Application for variation of conditions 8, 12 and 13 in respect of Decision Notice PA14/06591 in order to
190726 | FBHDG | One more post on the old Hayle Co-Op, Soon to be Home Bargains. As most people will know they have now shut the
One more post on the old Hayle Co-Op, Soon to be Home Bargains. read more »
170704 | Emails about hoardings
170620 | PA17/05791 | Change of use from A1 (second hand furniture shop / store) to D1 (church day centre, training centre and h
Change of use from A1 (second hand furniture shop / store) to D1 (church day centre, training centre and hall) including minor internal alterations. - 36 Penpol Terrace Hayle TR27 4BQ
Ref. No: PA17/05791 | Received date: Tue 20 Jun 2017 | Status: Approved with conditions | Case Type: Planning Application
Hayle Town Council
Comment Date: Fri 21 Jul 2017
Hayle Town Council objects on the following grounds:
a) loss of a retail unit;
b) lack of parking in the immediate area. read more »
Hayle Town Council comments on PA17/04218
080720 | W1/08-1024 | Construction of replacement dwelling Head No(s): 61815 | 10 Riverside Angarrack

