Articles
Appeal Allowed | PA15/01953 | Construction of a pair of semi-detached dwellings - 12 Back Lane | Decision APP/D0840/W/15/3121461
Extract of permission - via http://docs.planning.cornwall.gov.uk/rpp/showimage.asp?j=PA15/01953&inde...
ANNEX TO APPEAL DECISION APP/D0840/W/15/3121461
Conditions:
1) The development hereby permitted shall begin not later than three years
from the date of this decision.
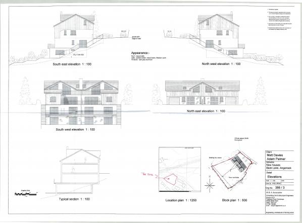
2) The development hereby permitted shall be carried out in accordance
with the following approved plans: Proposed Floor Plans 386/2; and
Mixed – site location and elevations 386/3. read more »
Appeal letter | PA15/02777 | Proposed residential development of 222 dwellings, associated public open space and provision
160218 | Hayle Town Council to hear application for 138 homes tonight | The Cornishman
Via http://www.cornishman.co.uk/Hayle-Town-Council-hear-application-138-home...
Hayle Town Council to hear application for 138 homes tonight
| Posted: February 18, 2016 read more »
160218 | This one is new to me - Hayle Town Council to hear application for 138 | Hayle development discussion group | Facebook
160122 | Hayle Town Council voted in favour of planning application R&J | Hayle development discussion group | Facebook
Ben Cwilewicz shared The Cornishman's post.
160122 | Hayle Town Council support application to turn R&J warehouse building into 70 homes | The Cornishman
Via http://www.cornishman.co.uk/Hayle-Town-Council-support-application-turn-...
Hayle Town Council support application to turn R&J warehouse building into 70 homes
| Posted: January 22, 2016 read more »
- Login or register to post comments
- Visit Change planned for industry site | ThisisCornwall.co.uk
- Permalink
PA15/10626 | Approved with conditions Proposed new dwelling (redesign & positioning of Planning Approval PA10/04077 & PA11/06433
Via http://planning.cornwall.gov.uk/online-applications/applicationDetails.d...
Proposed new dwelling (redesign and positioning of Planning Approval PA10/04077 and PA11/06433) - Land Adj To Number 16 Back Lane Angarrack Cornwall TR27 5JE
Ref. No: PA15/10626 | Received date: Wed 11 Nov 2015 | Status: Approved with conditions | Case Type: Planning Application read more »
100629 | W1/08-0613
Hayle Harbour North Quay Hayle Cornwall TR27 4BL
151215 Hayle - Planning for RJs | PA15/10513 | Demolition of existing warehouse type building comprising 3,600 square metres of
Demolition of existing warehouse type building comprising 3,600 square metres of floorspace and the erection of a 70 unit residential development comprising 2no. 2-bed houses, 1no. 4-bed house, 10no one-bed flats and 57no two-bed flats, revised and improved access road, parking provision, landscaping, cycle and bin storage, and retention of existing 'scoria' block retaining wall at the rear of the site. read more »
- Login or register to post comments
- Visit Change planned for industry site | ThisisCornwall.co.uk
- Permalink
RJ SUPPLIES HAYLE SUBMIT PLANS TO DEMOLISH AND CREATE HOUSING | Hayle development discussion group | Facebook


