Articles
PA15/04484 Screening Opinion for the erection of retail development comprising Class A1 and Class A3 and/or A1 units, including
150513 | Cranfords revised application to build in the Angarrack valley..Again.. | Facebook
1504 | Hayle Town Council considered the new twin-track Linden Homes planning application PA15/02777 and resolved to object exac
Linden Homes Planning Application
UPDATE - and see above
At its Full Council meeting last night, Hayle Town Council considered the new twin-track Linden Homes planning application PA15/02777 and resolved to object exactly as for PA14/09315 (see original below) with the added grounds for objection: read more »
PA15/03787 | Proposed residential development of 148 dwellings and associated works
PA15/02669 | Certificate of lawfulness for existing use: Use of land for the stationing of a static caravan used for residential
Via http://planning.cornwall.gov.uk/online-applications/centralDistribution....
Certificate of lawfulness for existing use: Use of land as a caravan site for stationing one caravan used for the purpose of human habitation - The Caravan 5 Steamers Hill Angarrack Hayle Cornwall TR27 5JB
Ref. No: PA15/02669 | Received date: Mon 16 Mar 2015 | Status: Pending Consideration | Case Type: Application read more »
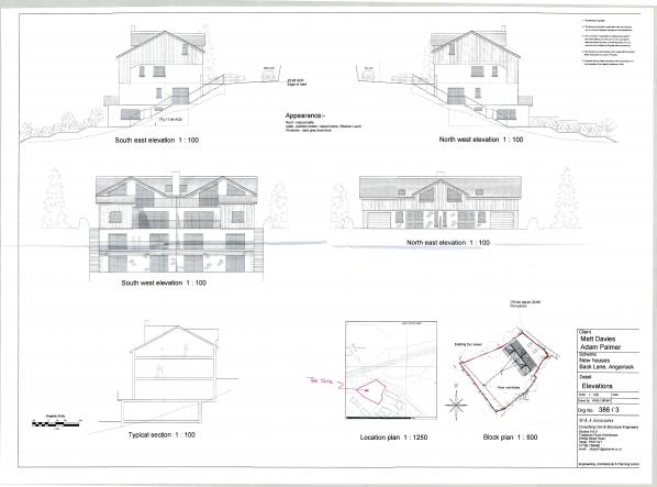
PA15/01953 | Construction of a pair of semi-detached dwellings - 12 Back Lane Angarrack Hayle Cornwall TR27 5JE
150319 | Revised retail plan for Hayle's Foundry Yard questioned by town council | The Cornishman
Via http://www.cornishman.co.uk/Revised-retail-plan-Hayle-s-Foundry-Yard/sto...
Revised retail plan for Hayle's Foundry Yard questioned by town council
| Posted: March 19, 2015 read more »
PA15/01875 | Listed Building Consent for the formation of safe means of escape for existing first floor resident | Angarrack Inn
Listed Building Consent for the formation of safe means of escape for existing first floor residential accommodation including construction of external staircase. Conversion of first floor apartment to form two apartments - Angarrack Inn 12 Steamers Hill Angarrack Hayle TR27 5JB
Ref. No: PA15/01875 | Received date: Thu 26 Feb 2015 | Status: Pending Consideration | Case Type: Application read more »
150226 | PA15/01874 | Formation of safe means of escape for existing first floor residential accommodation inclu | Angarrack Inn
Formation of safe means of escape for existing first floor residential accommodation including construction of external staircase. Conversion of first floor apartment to form two apartments - Angarrack Inn 12 Steamers Hill Angarrack Hayle TR27 5JB
Ref. No: PA15/01874 | Received date: Thu 26 Feb 2015 | Status: Pending Consideration | Case Type: Application
read more »
150224 | Clarification Neighbourhood Plan/Cornwall Local Plans
Further to Hayle Town Council's resolution to ask that Cranford's site on Marsh Lane be included for industrial or retail allocation questions were raised as to the status of the plans. read more »

